マンション
ライオンズシティ八王子
- 賃料
- 53,000円
- 所在地
- 東京都八王子市元横山町2丁目15-4
- 交通
- 中央本線 八王子駅 徒歩 9分
- 備考
- 掲載写真:参考写真 ◆JR八王子駅北口から徒歩1分◆八王子に密着して55年。 初期費用カード決済対応(一部例外有) WEB商談掲&WEB内見可能です♪
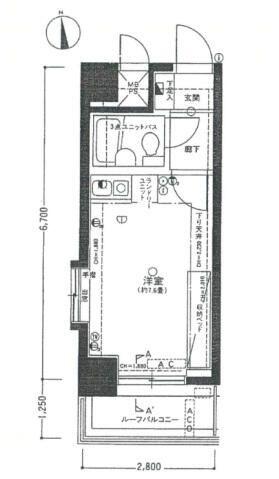
- 間取り
フォトギャラリー
POINT
南向き♪都市ガス♪オートロック♪宅配BOX♪
設備・条件
【風呂】有
【トイレ】水洗
【ガス】都市ガス
【水道】公営水道
【汚水】公共下水
【共用設備・施設】エレベーター 有、宅配ボックス、駐輪場
【陽当り・採光・通風】日当り良好
【管理・防犯】オートロック
【キッチン・関連設備】IHクッキングヒーター
【冷暖房】エアコン 有
【専用設備・仕様】室内洗濯機置場
【収納】シューズボックス
【情報設備・回線】CATV、BS、ネット専用回線、光ファイバー、CATV(ネット回線)
【費用・条件】保証会社利用可、礼金 不要、敷金 1ヶ月
物件概要
| 物件名 | マンション ライオンズシティ八王子 |
||
|---|---|---|---|
| 所在地 | 東京都八王子市元横山町2丁目15-4 | ||
| 交通 |
中央本線八王子駅 徒歩 9分 京王電鉄京王線 京王八王子駅 徒歩 14分 京王電鉄高尾線 京王片倉駅 徒歩 26分 |
||
| 間取り | 1R | 専有面積 | 18.76m² |
| 所在階/階建 | 2階/8階建 | 建物構造 | 鉄骨鉄筋コンクリート造 |
| 築年月 | 1993/05 | 部屋の向き | 南 |
| 火災保険 | 要 | 駐車場 | 近隣あり 17,500円(税込) |
| 現況/引渡時期 | 空き / 即引渡し可 | ||
| 契約期間 | 普通借家権 2年 | ||
| 備考 | 掲載写真:参考写真 ◆JR八王子駅北口から徒歩1分◆八王子に密着して55年。 初期費用カード決済対応(一部例外有) WEB商談掲&WEB内見可能です♪ |
賃料情報
| 賃料 | 53,000円 | ||
|---|---|---|---|
| 共益費・管理費 | 敷金・礼金 | 敷金(保証金)1ヶ月 敷金積増:- 礼金(保証金)なし |
|
| 更新料 |
その他情報
| 物件情報更新日 | 2026/03/28 | ||
|---|---|---|---|
| 物件コード | 114401-55697c | 取引態様 | 仲介 |
| 契約条件 | 普通借家権 |























