マンション
VITA八王子
- 賃料変更
- 賃料
- 213,000円
- 所在地
- 東京都八王子市南新町22ー21
- 交通
- 中央本線 八王子駅 徒歩 12分
- 備考
- 掲載写真:参考写真
【その他費用備考】入居サポート:1100円/月 更新事務手数料:新賃料の0.5ヶ月分 ※短期解約違約金有
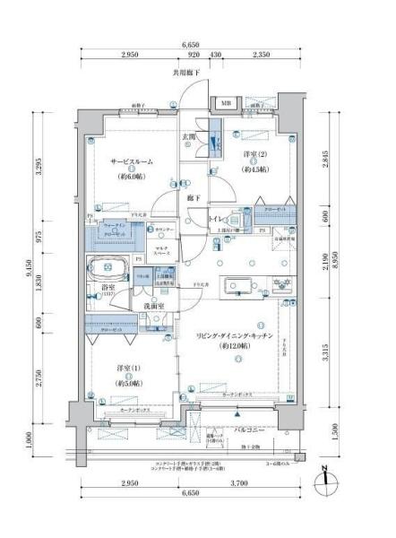
- 間取り
フォトギャラリー
POINT
築浅◎敷金礼金ゼロ◎日当たり良好◎ペット相談可◎都市ガス◎
設備・条件
【風呂】有
【トイレ】水洗
【ガス】都市ガス
【水道】公営水道
【汚水】公共下水
【共用設備・施設】エレベーター 有、宅配ボックス、バイク置場、駐輪場、敷地内ゴミ置き場、24時間ゴミ出し可
【管理・防犯】オートロック、火災警報器(報知機)
【キッチン・関連設備】システムキッチン、カウンターキッチン、ガスコンロ、グリル
【洗面・バス・トイレ】洗面所独立、洗面台、独立洗面台、シャンプードレッサー、バストイレ 別、バス 専用、シャワー、トイレ 専用
【冷暖房】冷房、エアコン 有、24時間換気システム
【専用設備・仕様】フローリング、室外洗濯機置場
【収納】収納、クローゼット、ウォークインクローゼット、シューズボックス
【情報設備・回線】TVインターホン、インターホン
【費用・条件】敷金・礼金不要、礼金 不要、敷金 不要
【家具・家電・照明】照明器具
物件概要
| 物件名 | マンション VITA八王子 |
||
|---|---|---|---|
| 所在地 | 東京都八王子市南新町22ー21 | ||
| 交通 |
中央本線八王子駅 徒歩 12分 京王電鉄京王線 京王八王子駅 徒歩 15分 中央本線 西八王子駅 徒歩 25分 |
||
| 間取り | 2SLDK | 専有面積 | 61.06m²(18.47坪) |
| 所在階/階建 | 2階/7階建 | 建物構造 | 鉄筋コンクリート造 |
| 築年月 | 2025/02(1年1ヶ月) | 部屋の向き | 南 |
| 火災保険 | 要 | 駐車場 | あり 有料 27,500円 |
| 現況/引渡時期 | 空き予定 / 期日指定2026年3月下旬 | ||
| 契約期間 | 普通借家権 2年 | ||
| 備考 | 掲載写真:参考写真 【その他費用備考】入居サポート:1100円/月 更新事務手数料:新賃料の0.5ヶ月分 ※短期解約違約金有 |
賃料情報
| 賃料 | 213,000円 | ||
|---|---|---|---|
| 共益費・管理費 | 敷金・礼金 | 敷金(保証金)なし 礼金(保証金)なし |
|
| 更新料 | 1ヶ月 |
その他情報
| 物件情報更新日 | 2026/02/05 | ||
|---|---|---|---|
| 物件コード | 114401-49662c | 取引態様 | 仲介 |
| 契約条件 | 普通借家権 |

























