新築一戸建
神奈川県相模原市中央区陽光台3丁目
- 価格
- 3,580万円
- 駐車場(カースペース)
- 有
- 所在地
- 神奈川県相模原市中央区陽光台3丁目
- 交通
- 相模線 上溝駅 徒歩 11分
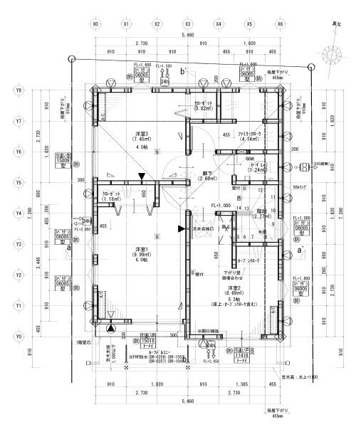
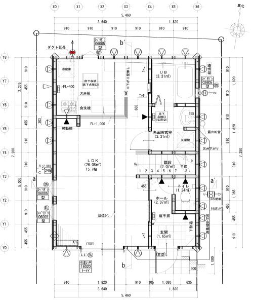
- 間取り
- 3SLDK
フォトギャラリー
住宅ローンシミュレーション
設備・条件
【ガス】都市ガス
【水道】公営水道
【汚水】公共下水
【雑排水】公共下水
物件概要
| 物件名 | 新築一戸建 神奈川県相模原市中央区陽光台3丁目 |
||
|---|---|---|---|
| 交通 | 相模線 上溝駅 徒歩 11分 | ||
| 学区情報 | 小学校:陽光台小学校170m 中学校:上溝中学校1100m |
現況 | 未着工 |
| 引渡時期 | 相談 | ||
| 建物構造 | 木造 | 築年月 | 2026/01 |
| 建物階建 | 2階建 | 間取り | 3SLDK |
| 建築確認番号 | KS125-3820-50337号 | ||
| 土地面積 | 81.47m2(24.64坪)[公簿] | ||
| 私道面積 | 無 | セットバック | 無 |
| 地目 | 宅地 | ||
| 都市計画 | 市街化区域 | 用途地域 | 第一種低層住居専用地域 |
| 国土法届出 | 不要 | 土地権利 | 所有権 |
| 建ぺい率 | 50% | 容積率 | 100% |
| 接道状況 | 三方角地 / 北:公道 幅員4.0m 接面5.67m / 東:公道 幅員4.0m 接面10.1m / 南:公道 幅員4.0m 接面7.07m | ||
| 物件情報更新日 | 2025/10/19 | ||
| 物件コード | 114401-15419 | 取引態様 | 仲介 |





















