新築一戸建
八王子北野台3期1棟1号棟
- 新築
- 会員限定
- 価格変更
- 価格
- 4,798万円
- 駐車場(カースペース)
- 有
- 所在地
- 東京都八王子市北野台3丁目
- 交通
- 京王電鉄京王線 北野駅 バス 12分「公園前」 停歩2分
- 間取り
- 4LDK
フォトギャラリー
住宅ローンシミュレーション
設備・条件
【ガス】都市ガス
【水道】公営水道
【汚水】公共下水
【雑排水】公共下水
【物件の性能】設計住宅性能評価有、建設住宅性能評価書有(新築時)、耐震構造
【立地・土地特徴】高台に立地、整形地、緑豊かな住宅地、閑静な住宅地、角地、地盤調査書有、土地広さ 50坪以上、前道6m以上、2沿線以上利用可
【日当たり・採光・通風】日当り良好、通風良好
【専用設備・仕様】フローリング
【収納】全居室収納、クローゼット、ウォークインクローゼット、シューズボックス、床下収納
【キッチン・関連設備】システムキッチン、カウンターキッチン、ガスコンロ、パントリー
【洗面・バス・トイレ】独立洗面台、シャンプードレッサー、バス広さ 1坪以上、オートバス、追い焚き、浴室暖房、浴室乾燥機、トイレ2ヶ所、温水洗浄便座
【エコ関連】フラット35・S適合証明書有
【管理・防犯】TVインターホン
【周辺環境】眺望良好
物件概要
| 物件名 | 新築一戸建 八王子北野台3期1棟1号棟 |
||
|---|---|---|---|
| 交通 |
京王電鉄京王線 北野駅 バス 12分「公園前」 停歩2分 横浜線 八王子みなみ野駅 バス 11分「公園前」 停歩2分 中央本線 八王子駅 バス 23分「公園前」 停歩2分 |
||
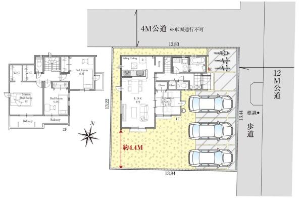
| 学区情報 | 小学校:高嶺小学校200m 中学校:中山中学校900m |
現況 | 新築 |
| 引渡時期 | 即引き渡し可 | ||
| 建物構造 | 木造 | 築年月 | 2025/12 |
| 建物階建 | 2階建 | 間取り | 4LDK |
| 建築確認番号 | TKK確済25-171号 令和7年8月8日 | ||
| 土地面積 | 184.52m2(55.81坪)[公簿] | ||
| 私道面積 | 無 | セットバック | 無 |
| 地目 | 宅地 | ||
| 都市計画 | 市街化区域 | 用途地域 | 第一種低層住居専用地域 |
| 国土法届出 | 不要 | 土地権利 | 所有権 |
| 建ぺい率 | 40% | 容積率 | 80% |
| 接道状況 | 二方 / 東:公道 幅員12.0m 接面13.4m / 北:公道 幅員4.0m 接面13.8m | ||
| 物件情報更新日 | 2026/01/23 | ||
| 物件コード | 114401-15406 | 取引態様 | 仲介 |






























